












Descrição
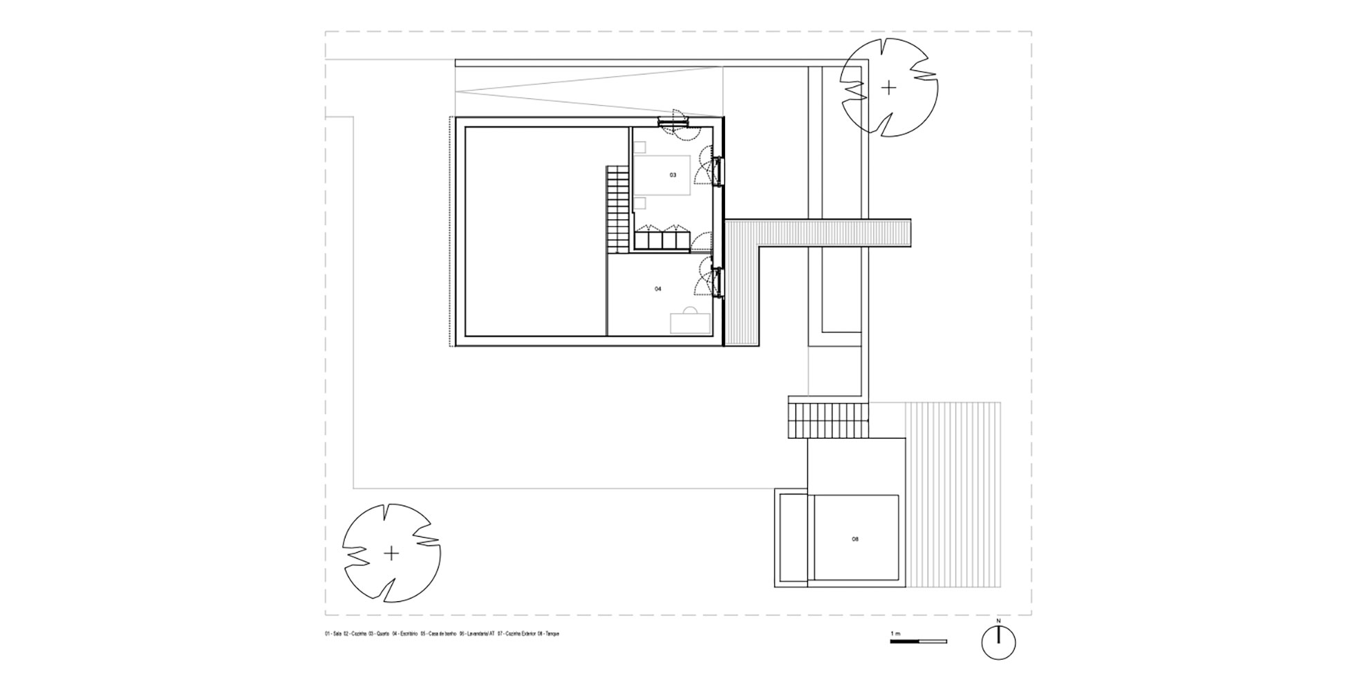
A Várzea de Aljezur, situa-se num vale, propício à actividade agrícola, que pelas suas condições naturais garante grande produtividade. A casa de 80 m2 encontra-se numa cota mais elevada, protegendo-se assim de possíveis alagamentos, numa zona de Reserva Ecológica e Agrícola, classificada como leito de cheias. Ao estar implantada numa zona de declive, optou-se pela cobertura inclinada de uma única água, possibilitando que no seu interior, se garantisse mais espaço com uma mezanine. Os vãos pontuam as fachadas de forma a aproveitar ao máximo a vista sobre o Castelo de Aljezur e sua encosta pontuada pelo casario, assim como, a captação da energia solar garantida pela orientação de sul. A casa de tipologia T1 + 1, tem um quarto em suite no piso térreo que liga diretamente ao espaço amplo de sala e cozinha. Deste espaço acede-se à casa de banho social e à escada que nos leva ao quarto e escritório. Este espaço usufrui de uma varanda exterior com vista para a futura vinha. Ambos os quartos recebem luz de nascente. A casa é construída em paredes de blocos de cânhamo e argamassas à base de cal, complementadas pontualmente por cortiça, garantindo um excelente conforto térmico, contribuindo para a redução do impacto ambiental. As paredes interiores e exteriores são pintadas de branco e a caixilharia é em madeira à cor natural. Os pavimentos são revestidos num material contínuo à base de cal, à excepção do quarto que é revestido a madeira de carvalho. A presença suave da pedra branca de estremoz nas soleiras e peitoris, a pedra de tons creme nas bancadas da cozinha e as guarnições dos vãos em madeira complementam o carácter contemporâneo dos espaços. Pontualmente temos azulejos no revestimento de alguns panos de parede. A tardoz como a empena é bastante alta, optou-se por revesti-la em madeira, tendo continuidade no deck junto ao tanque de apoio à vinha, que ocupa a encosta solarenga. Entre o edifício e o declive temos um pátio com uma horta que termina num muro banco. As restantes zonas do terreno em volta da casa serão pontuadas por árvores de fruto e uma cozinha exterior protegida por uma pergola metálica de ensombramento, inspirada nas latadas, protegendo os vãos a sul e poente com a ajuda de plantas trepadeiras de folha caduca.